Mmmm..... cookies...

Afdeling

Skovparken, Kastanievej
182-1

Skovsyrevej 1, 2, 3, 4, 5, 6, 7, 8, 9, 10, 11, 12, 13, 14, 15, 17, 18, 19, 20, 21, 22, 23, 24
Skovstjernevej 4, 5, 6, 7, 13, 14, 15, 16, 17, 18, 19, 20, 21, 22, 26, 27, 28

Boliginfo

Adresser

Kastanievej 1 - 15, 2 - 24,
4700 Næstved

Skovstjernevej 1 - 102,
4700 Næstved

Skovsyrevej 1 - 95,
4700 Næstved

Boligtype

Antal boliger

40

Energimærke

C

Andet

Altan: Nej
Elevator: Nej
Husdyr tilladt: Ja

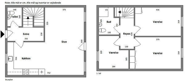
Værelser

4

Størrelser

107-108 m2

Husleje

8664 kr.

Indskud

26750 kr

Ventetid

2 år - 4 år

Forventede ventetider for ansøgere på den interne venteliste:
2 vær. 1 - 2 år
3 vær. ½ - 2 år
4 vær. 1 - 2 år

Forventede ventetider for ansøgere på ekstern venteliste:
2 vær. 15 - 17 år
3 vær. 13 - 15 år
4 vær. 2 - 4 år

Forventet ventetid ungdomsbolig:
½ - 1 år

Skriv dig op her!